Select Page

The Driftwood Collection - Coming Soon

Project Information

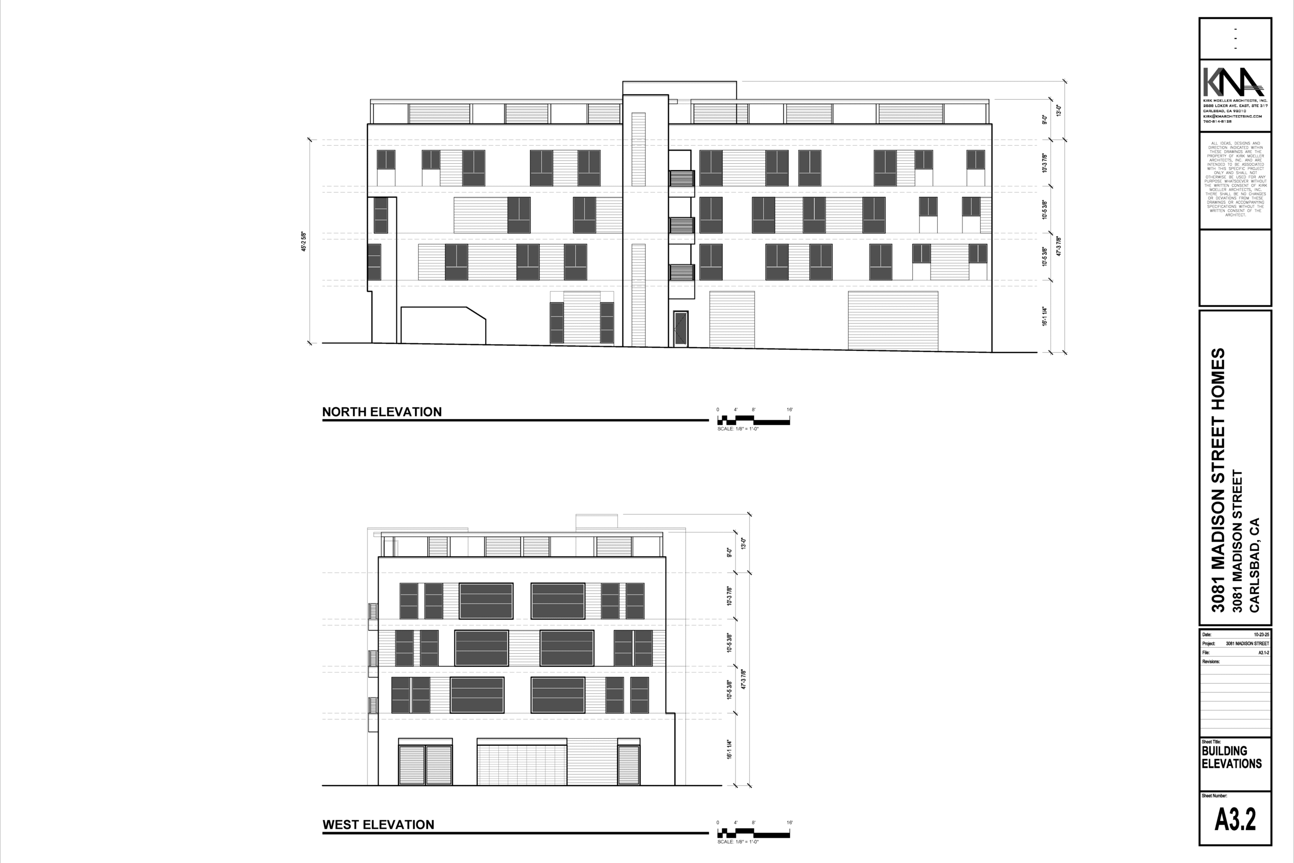
  • 3081 Madison Street Homes
  • Demolition of a commercial office building and a duplex
  • Construction of a new four story, approximately 35,289 sf, 47′-3 7/8″ height, 12-unit residential condominium building with a common ground floor parking garage containing 20 parking lift spaces, one ADA space and 3 standard spaces (2 spaces per unit).
  • Project Applicant and Architect: Kirk Moeller Architects, Inc.: 760-814-8128 | kirk@kmarchitectsinc.com
  • City Project Planner: Lauren Yzaguirre: 442-339-2634 | lauren.yzaguirre@carlsbadca.gov
Click Here

Enhanced Public Engagement Notice

Project information

 

Date of application

11/5/25

Project name

3081 Madison Street Homes

Project location

3081 Madison Street

Nearest cross street is Oak Ave.

Project description

Demolish the existing commercial and residential structures and construct a multi-family residential development on a .24-acre site consisting of:

·         12 residential condominium units within a 32,261-square foot, 4-story, 47-foot-high building.

·         Of the proposed units, 1 unit at +/- 1,920 square-feet will be affordable to very low-income households and 11 units ranging from +/- 1,867 square feet to 2,906 square feet each will be market-rate units.

·         24 parking garage spaces will be provided.

The project proposes deviations from the following city-adopted developer standards in the following ways:

WAIVERS PROPOSED – See below

 INCENTIVE / CONCESSION PROPOSED  -See below

Project number

CT 2025-0007 / SDP 2025-0010

(to reference application on file with the City of Carlsbad Planning Department)

Type of permit(s) required

Tentative Parcel Map / Site Development Permit

Project applicant contact

Kirk Moeller

Architect

Kirk Moeller Architects, Inc.

2888 Loker Ave. E. Suite 317 

Carlsbad, CA 92010

760-814-8128

kirk@kmarchitectsinc.com

Project website – villagedevelopment.co

City planning contact

Lauren Yzaguirre

City of Carlsbad

1635 Faraday Ave.

Carlsbad, CA 92008

442-339-2634

Lauren.yzaguirre@carlsbadca.gov

How to get more information

Call or email the project contact if you have questions or would like more information. You may also request a copy of the project application from the city planning contact.

Waiver #1

Code/Policy Number: VBMP 2.3 Table 2-1 / Figure 2-2.

Required Standard: Ground floor residential use restriction.

Proposed Deviation: Residential use is proposed on the 1st floor.

Reason for Waiver Request: To provide a commercial ground floor component would prevent the construction of the required infrastructure and amenities for the proposed residential use due to ground floor area needed to support the commercial component. Accordingly, imposition of this standard physically precludes implementation of the proposed project at the densities permitted by state law. This waiver does not result in an impact to health or safety or the physical environment.

Waiver #2

Code/Policy Number: VBMP 2.7.1(A)

Required Standard: Five feet (5’) maximum front building setback.

Proposed Deviation: Residential use is proposed on the 1st floor with private entrances to the ground floor of the units. To provide a private entry area before entering the front door from the street, additional front setbacks are required by way of a private patio.

Reason for Waiver Request: Providing a private entry area from the street before entering the units at the ground floor is a safety and functionality feature that is necessary to provide for a desirable habitiabel residential unit. Accordingly, imposition of this standard physically precludes implementation of the proposed project at the densities permitted by state law. This waiver does not result in an impact to health or safety or the physical environment.

Waiver #3

Code/Policy Number: VBMP 2.7.1(G)(1)

Required Standard: Maximum building height of 45’ and four stories.

Proposed Deviation: Maximum building height is proposed not to exceed 47’-6” and four stories.   

Reason for Waiver Request: To accommodate the 12 units as permitted by state law, additional building height is required. Adequate ceiling height within the units and garage level to accommodate larger window assemblies, enhanced light, air circulation, necessary conditioning and parking systems to maintain overall enhanced livability, additional height is required. Accordingly, imposition of this standard physically precludes implementation of the proposed project at the densities permitted by state law. The proposed additional height does not result in an impact to health or safety or the physical environment.  

Waiver #4

Code/Policy Number: VBMP 2.7.1(G)(3)(a)

Required Standard: If a 4-story building is proposed a maximum of 30 percent of the fourth story street facing facade can have a 0-foot setback (as measured from the property line). The remaining 70 percent shall be set back a minimum of 10 feet (as measured from the property line).

Proposed Deviation: The elimination of the 4th floor setback requirement completely.

Reason for Waiver Request: Providing a minimum ten-foot (10’) setback for 70 percent of the street façade on the 4th floor would eliminate the otherwise habitable interior square footage of the affected units. Accordingly, imposition of this standard physically precludes implementation of the proposed project at the densities permitted by state law. The proposed elimination of the 4th floor street facing façade setback does not result in an impact to health or safety or the physical environment.  

Waiver #5

Code/Policy Number: VBMP 2.7.1(G)(3)(b)

Required Standard: The total square footage of enclosed fourth floor space shall not exceed 80 percent of the largest enclosed floor space below (floors one, two, or three). However, in no case shall the fourth-floor enclosed space exceed the amount of the third-floor enclosed space. 

Proposed Deviation: The elimination of the 4th floor maximum enclosed space requirement completely.

Reason for Waiver Request: Providing the maximum enclosed 4th floor space requirement would eliminate the otherwise habitable interior square footage of the affected units.  To accommodate the 12 units proposed, as permitted by state law, additional usable area on the fourth story is necessary.  To meet the 80% maximum requirement, additional livable area would need to be removed, affecting upper floor square footages.  Accordingly, imposition of this standard physically precludes implementation of the proposed project at the densities permitted by state law. The proposed elimination of the 4th floor street facing façade setback does not result in an impact to health or safety or the physical environment.  

Waiver #6

Code/Policy Number: VBMP 2.7.1(H)(1)

Required Standard: Maximum wall plane and roofline: No building façade visible from any public street (excluding alleys) shall extend more than 40 feet in length without a 5-foot minimum variation in the wall plane, as well as a change in roofline. 

Proposed Deviation: Wall plane and roofline variation not provided within the maximum 40 feet in length.

Reason for Waiver Request: Providing the wall plane and roof line variation requirement within 40 feet of facades facing a public street would eliminate the otherwise habitable interior square footage of the affected units. Accordingly, imposition of this standard physically precludes implementation of the proposed project at the densities permitted by state law. The proposed elimination of the required wall plane and roof line variation does not result in an impact to health or safety or the physical environment.  

Waiver #7

Code/Policy Number: VBMP 2.6.2(C)(4)(b)

Required Standard: All roof structures shall be set back a minimum of five feet from all building faces and shall not exceed 42 inches above the maximum height.

Proposed Deviation: Building parapets and roof structures exceed the maximum height of 42” above the maximum height of the building.

Reason for Waiver Request: Limiting the roof structures to 42 inches above the maximum building height and set back a minimum of five feet from all building faces is not feasible as the project is proposing to exceed the maximum building height in a separate waiver. This requirement would prevent the construction of required infrastructure and private and common open space amenities for the proposed residential units. Accordingly, imposition of this standard physically precludes implementation of the proposed project at the densities permitted by state law. The proposed elimination of the required limiting height of roof structures does not result in an impact to health or safety or the physical environment.  

Waiver #8

Code/Policy Number: VBMP 2.6.2(C)(4)(c)

Required Standard: Roof structures specifically for the housing of elevators, stairways, tanks, ventilating fans or similar equipment required to operate and maintain a building shall be allowed up to ten feet (10’) above maximum height.

Proposed Deviation: All roof structures allowed to exceed the maximum height by ten feet (10’), exceed the maximum height of fifty-five feet (55’).

Reason for Waiver Request: Limiting the roof structures to 10’ above the maximum building height and set back a minimum of five feet from all building faces is not feasible as the project is proposing to exceed the maximum building height in a separate waiver. This requirement would prevent the construction of the required infrastructure and roof access for both amenities and fire department access. Accordingly, imposition of this standard physically precludes implementation of the proposed project at the densities permitted by state law.  The proposed reduction of height of roof structures allowed up to 10’ above maximum height does not result in an impact to health or safety or the physical environment.

Waiver #9

Code/Policy Number: VBMP 2.6.2(C)(4)(d)

Required Standard: The cumulative area devoted to roof structures (excluding roof decks, parapets, solar energy systems and skylights) shall not exceed 10 percent of horizontal roof area.

Proposed Deviation: Proposed decorative private open space shade trellis area shall account for +/- 40% of the roof deck area.

Reason for Waiver Request: Providing a shade option for the required private open space patios provides for the impression of upper floor articulation and is necessary to provide a desirable amenity when put on the market. Accordingly, imposition of this standard physically precludes implementation of the proposed project at the densities permitted by state law.  This waiver does not result in an impact to health or safety or the physical environment.

Waiver #10

Code/Policy Number: CMC 21.45.080 (Table E(E.6))

Required Standard: Each parking space shall maintain a standard stall size of 8.5 feet by 20 feet, exclusive of supporting columns.

Proposed Deviation: Minimum parking stall size to be 8.5 feet by 19 feet to work with the proposed lift system dimensions and site constraints.

Reason for Waiver Request: Providing an on-site parking option for residents is necessary to provide a desirable amenity.  Accordingly, imposition of this standard physically precludes implementation of the proposed project at the densities permitted by state law.  This waiver does not result in an impact to health or safety or the physical environment.

Waiver #11

Required Standard: Pedestrian walkways that are private, interior walkways, shall be flanked on both sides with landscaping, including, ground cover, and shrubs a maximum four feet in height. At a minimum, one side of the walkway shall provide trees which shall be spaced to shade at least fifty (50%) percent of the overall walkway length at maturity.

Proposed Deviation: Pedestrian walkways are not flanked with landscape and trees per the requirement.

Reason for Waiver Request: Providing walkways flanked with landscaping and to provide trees with area to allow for the tree canopies would eliminate the otherwise salable interior square footage of the building and necessary support areas for the residential use. Accordingly, imposition of this standard physically precludes implementation of the proposed project at the densities permitted by state law.  The proposed elimination of the walkway landscape requirement does not result in an impact to health or safety or the physical environment.

Waiver #12

Code/Policy Number: ODS 3.8(C)(5)

Required Standard: For buildings or portions of buildings which are three (3) to four (4) stories in height, provide articulation for the top story of the building. This may be accomplished by a color change, material change, a cornice/belt course at the bottom of the uppermost story.

Proposed Deviation: Top story articulation is not provided per the attached requirement; however, the proposed set back shade trellis provides for upper floor building element articulation.

Reason for Waiver Request: Providing upper floor articulation to meet the exact Objective Design Standard requirements would prevent the intended high quality architectural design, necessary for marketability to acquire the pre-determined selling point for the non-low-income units. Accordingly, imposition of this standard physically precludes implementation of the proposed project at the densities permitted by state law.  The proposed elimination of the walkway landscape requirement does not result in an impact to health or safety or the physical environment.

Waiver # 13

Required Standard: Buildings located mid-block, greater than 25-feet from the corner of a primary street, shall express a horizontal articulation via banded or layered Building Wall Element projections or encroachment within each story to the edge of the building. The architectural projections that can be used to express a horizontal articulation include balconies, bay windows, cantilevered rooms, and/or awnings

Proposed Deviation: Horizontal articulation not provided per the exact Objective Design Standard requirements; however, implied horizontal articulation is provided by the building’s architectural random composite wood panels.

Reason for Waiver Request: Providing horizontal articulation to meet the exact Objective Design Standard requirements would prevent the intended high quality architectural design and reduce the otherwise salable square footage. Accordingly, imposition of this standard physically precludes implementation of the proposed project at the densities permitted by state law.  The proposed variation in the approach to meeting the horizontal articulation standard does not result in an impact to health or safety or the physical environment.

Waiver #14

Code/Policy Number: ODS 7.2(C)

Required Standard: To maintain sun exposure on neighboring lots, where new multifamily housing and mixed-use development is located on a lot facing a side street, between an alley and a primary street, buildings shall step back toward the interior of the lot at a 54-degree angle from the vertical plane starting at thirty-five feet (35’-0”) in height, up to the maximum building height.

Proposed Deviation: Upper floor step back requirement is not provided.

Reason for Waiver Request: Stepping back the upper floor adjacent to the alley would eliminate the otherwise salable interior square footage of the affected units. Accordingly, imposition of this standard physically precludes implementation of the proposed project at the densities permitted by state law.  The proposed elimination of the upper floor step back requirement does not result in an impact to health or safety or the physical environment.

Waiver #15

Code/Policy Number: ODS 4.7(B)

Required Standard: Base of Building: 1. Large Apartment fronts shall have one (1) identifiable common entry within a Frontage  

Type that shall be raised (stoop and terrace), or at grade (forecourt and fence and hedge) at  

the primary street level to facilitate private residential living.

  1. Upper floor units shall share a common entrance fronting onto the primary street.
  2. Allowed Frontage Types (see Chapter E-5):
  3. Stoop
  4. Raised Terrace
  5. Forecourt
  6. Fence and Hedge

Proposed Deviation: One (1) identifiable common entry meeting the requirements and fronting onto the primary street is not provided.

Reason for Waiver Request: Locating the primary entrance fronting onto the primary street would require additional internal common access corridors thus would eliminate the otherwise salable interior square footage of the affected units. Accordingly, imposition of this standard physically precludes implementation of the proposed project at the densities permitted by state law.  The proposed elimination of the base of building primary entrance requirements does not result in an impact to health or safety or the physical environment.

Incentive #1

Code/Policy Number: Engineering requirement.

Required Standard: 3” street frontage asphalt grind and overlay requirement.

Proposed Deviation: Existing asphalt street to remain. Saw cut areas to be repaired and street frontage to receive a slurry seal.

Reason for Waiver Request: Requiring a 3” asphalt grind and overlay across the entire project street frontage would preclude the proposed projects financial feasibility to allow for the proposed very low-income unit to be constructed. The proposed elimination of the asphalt grind and overlay requirement does not result in an impact to health or safety or the physical environment.

Design